Газовый паровой котел 2000 кг (2.0 т пара) - 115°С -0,07 МПа / 0,7 кгс/cм² в Ташкенте

Котел паровой 2000 кг 115 С на газе
Паровой котел 2000 кг 115 С на газе
Чертеж газового парового котла 2000 кг 115 С
Газовый паровой котел 2000 кг 115 С чертеж
Паровой газовый котел 2000 кг в час с температурой 115 С
Газовый паровой котел 2000 кг в час с температурой 115 С
Газовый жаротрубный котел 2000 кг пара в час 115 С
Жаротрубный газовый котел 2000 кг пара в час 115 С
Паровой котел 2000 кг в час на газу температура пара 115 С изготовление
Изготовление парового котла 2000 кг в час на газу температура пара 115 С
Паровой газовый котел 2000 кг температура пара 115 С изготовление
Изготовление парового газового котла 2000 кг температура пара 115 С
Паровой котел на газе 2000 кг 115 С производство
Производство газовых паровых котлов 2000 кг 115 С
Схема парового котла 2000 кг 115 С на газу
Паровой котел 2000 кг 115 С на газе схема
Котел паровой 2000 кг 115 С на газе
Чертеж газового парового котла 2000 кг 115 С
Паровой газовый котел 2000 кг в час с температурой 115 С
Газовый жаротрубный котел 2000 кг пара в час 115 С
Паровой котел 2000 кг в час на газу температура пара 115 С изготовление
Паровой газовый котел 2000 кг температура пара 115 С изготовление
Паровой котел на газе 2000 кг 115 С производство
Схема парового котла 2000 кг 115 С на газу
Цена
9 425 520 ₸
От 9 425 520 ₸ с доставкой до г.
Логотип WhatsApp Связаться
по WhatsApp
  • Непрерывная выработка сухого пара независимо от нагрузки котла
  • Отсутствие температурных расширений обеспечивает надежность конструкции
  • Подпитка котла производится даже холодной водой +5 ºС
  • Удобная очистка поверхностей нагрева без остановки котла

Технические характеристики

МаркаSTEAMEXPERT
ВидПаровой котел КП
Вид топкиГазовая горелка
Конструкция котлаЖаротрубный
Производительность2000 кг/ч
Производительность2.0 т/ч
Максимальная тепловая мощность1.5 МВт
Диапазон регулирования мощности40-100 %
ТопливоГаз
Низшая теплота сгорания проектного топлива9400 кКал/кг
КПД котла на ГАЗЕ, не менее90 %
Расход топлива155 нм³/ч
Расход условного топлива209 кг/ч
Температура пара, не более115 °С
Давление пара, не более0.07 МПа
Давление пара, не более0.7 (кгс/см²)
Давление пара, не более0.7 бар
Полный объем котла4.96 м³
Объем паровой части0.47 м³
Аэродинамическое сопротивление67 (6.7) Па (мм. вод. ст.)
ТягаПринудительная
Объем топочной камеры2.91 м³
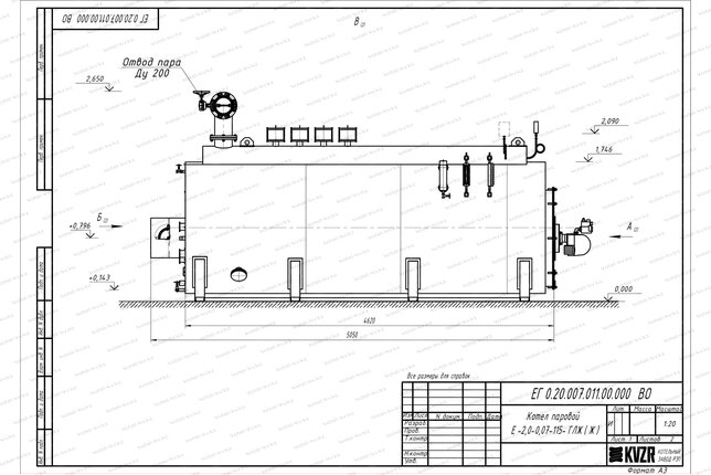
Размер топочной камеры, диаметр*глубина1195х2600 мм
Присоединительные размеры выхода пара200 Ду
Присоединительные размеры по водяному тракту32 Ду
Присоединительные размеры по дымовым газам / диаметр дымовой трубы500 мм
Габаритные размеры котла, длина*ширина*высота5050х1800х2100 мм
Масса5000 кг
ЭнергоэффективностьВысокая
БрендSTEAMEXPERT

Паровой котел STEAMEXPERT Е 2.0 0.07 115 Г на газу в Ташкенте

Промышленный газовый паровой котел Е 2.0 Ташкент предназначен для производства пара температурой до 115 °С и давлением 0.07 МПа на технологические нужды для вашего производства. Парогенератором пользуются бетонные заводы при производстве ЖБИ изделий, химические предприятия, строительные организации, воинские части, больницы, бани, предприятия нефтегазовой, кожевенной, пищевой.

Наши паровые котлы STEAMEXPERT Е 2,0 0,07 на газе имеют следующие преимущества

  • Большая поверхность испарения препятствует выносу капель воды и увеличивает скорость испарения
  • Дополнительное разделение пара от воды в паросборной камере. Повышается качество пара путем улавливания капелек воды из пара
  • Большая паровая камера обеспечивает непрерывную подачу пара при любой нагрузке и сокращает время выхода на заявленную производительность
  • Эффективная конвективная часть котла способствует высокой скорости нагрева воды
  • Отсутствие тепловых расширений благодаря комбинированной компановке
  • Большой водяной объем котла 2,0 т позволяет производить подпитку холодной водой +5° без температурных колебаний
  • Чистка конвективного пакета паром без остановки котла. На задней стенке агрегата находятся лючки для обдувки. Обдувка производится аппаратом для обдувки при минимальной нагрузке и максимальном давлении

Жаротрубный паровой котел пар 2000 кг низкого давления можно перевести в водогрейный режим изменив схему подключения.

Устройство парового газового котла 2000 кг в час

Промышленный стальной паровой котел КП 2000 газовый изготавливается в горизонтальном исполнении и состоит из двух цилиндров, паросборника, конвективной части. Цилиндры размещаются один в другом и соединяются фланцами. Внутренний цилиндр – это топочная часть генератора. Межцилиндрическое пространство заполняется водой, сверху приваривается паросборник, на который крепятся 2 предохранительных клапана.

К фронтовой плите крепится горелка для подачи топлива в топку жаротрубного котла. Газовый паровой котел 2000 кг может работать с отечественными горелками EMMA и импортными UNIGAS, BALTUR, ECOSTAR, FBR S.R.L. В качестве топлива может применяться природный газ низкого и среднего давления, а также сжиженный газ. Продукты сгорания выводятся чрез дымовую трубу. В основании дымовой трубы установлен предохранительный клапан.

Вода в цилиндрический котел steam 2000 подается насосом. На паровой промышленный котел желательно устанавливать рабочий и резервный насосы. Дренажи и воздушники производят дренирование трубной системы от шлама и удаление скапливающего воздуха.

Безопасность установки обеспечивают клапаны. При повышении давления выше допустимого, срабатывают клапаны осуществляя автоматический выпуск пара.

Автоматика парового котла предусмотрена для управления и защиты. В случае отклонения от заданных параметров происходит световой и звуковой сигнал.

Паровой котел Е 2.0 0.07 115 Г на газе принцип работы

Газ сгорает в топочной части парового котла Е 2 0 0 07, окруженной водяной охлаждаемой рубашкой. Продукты горения проходят через трубный пучок и выходят в верхней части генератора.

Трубный пучок находится за камерой горения. Трубки заполнены водой и омываются горячими газами, за счет чего происходит теплообмен. Пар образуется при испарении нагреваемой воды и собирается в верхней части котлоагрегата, над которой выполнена паросборная камера, далее через паропровод направляется потребителю на технологические нужды.

Монтаж и подключение

Горизонтальный газовый паровой котел 2000 кг в час для производства пара поставляется блоками максимальной заводской готовности. Агрегат устанавливается в котельной на специально подготовленную ровную поверхность. Подсоединяется по воде, устанавливается запорная арматура на подводящем трубопроводе и отводящем паропроводе, предохранительные клапаны и контрольно-измерительные приборы. Подсоединяется вентилятор и автоматика.

Купить газовый паровой котел Е 2.0-0.07-115 Г

Для того чтобы купить паровой котел 2000 кг пара в час на газе в Ташкенте, вы можете сделать заявку по телефону +7-7172-69-59-73, либо оформить заявку онлайн. Менеджеры дадут консультацию по подбору вспомогательного оборудования для выбранных вами моделей и рассчитают стоимость доставки. Транспортирование котлоагрегата и вспомогательного оборудования до объекта осуществляется автомобильным транспортом.

Комплект поставки

Клапан предохранительный КПС
Клапан предохранительный самопритирающийся
4 штуки
Вентиль Ду 20
Вентиль Ду 20
1 штука
Шаровый кран
Кран шаровый
5 штук
Указатель уровня
Указатель уровня
2 штуки
Устройство запорное Ду 20
Запорное устройство Ду 20
2 штуки
Затвор Ду 200
Затвор Ду 200
1 штука
Клапан обратный
Клапан обратный
1 штука
Кран трехходовой ДУ 15
Кран Ду 15
3 штуки
Манометр ДМ2005 Сг 10.0 кгс см2
Манометр ДМ2005Сг 10,0 кгс/см2
2 штуки
Манометр МП 160
Манометр МП 160
1 штука

Дополнительно потребуется

Горелка газовая Emma
Цена 4 719 120 тг.
Pedrollo насос
Насос Pedrollo CP-132 (0.55 кВт)
Цена 190 164 тг.
CDM насос
Насос CDM 5-3 (0.55 кВт)
Цена по запросу
Дымовые трубы
Цена по запросу
Газоход котла
Цена по запросу

Похожая продукция

Котел паровой 2000 кг 130 С на газе
Газовый паровой котел 2000 кг (2.0 т пара) - 130°С -0,17 МПа / 1,7 кгс/cм²
Производительность, кг/ч2000
ТопливоГаз
Температура пара, не более, °С130
Давление пара, не более, МПа0.17
Цена 10 347 720 тг.
Котел паровой 2.0 тонны 170 С на газе
Газовый паровой котел 2000 кг (2.0 т пара) - 170°С -0,9 МПа / 9 кгс/cм²
Производительность, кг/ч2000
ТопливоГаз
Температура пара, не более, °С170
Давление пара, не более, МПа0.9
Цена 12 497 400 тг.
Котел паровой 1600 кг 115 С на газе
Газовый паровой котел 1600 кг (1.6 т пара) - 115°С -0,07 МПа / 0,7 кгс/cм²
Производительность, кг/ч1600
ТопливоГаз
Температура пара, не более, °С115
Давление пара, не более, МПа0.07
Цена 8 598 720 тг.
Котел паровой 2500 кг 115 С на газе
Газовый паровой котел 2500 кг (2.5 т пара) - 115°С -0,07 МПа / 0,7 кгс/cм²
Производительность, кг/ч2500
ТопливоГаз
Температура пара, не более, °С115
Давление пара, не более, МПа0.07
Цена 11 098 200 тг.
Котел паровой 2000 кг 115 С на дизеле
Дизельный паровой котел 2000 кг (2.0 т пара) - 115°С -0,07 МПа / 0,7 кгс/cм²
Производительность, кг/ч2000
ТопливоЖидкое, Дизель
Температура пара, не более, °С115
Давление пара, не более, МПа0.07
Цена 9 425 520 тг.

Сертификаты товара

Сертификат на котлы отопительные паровые КП
Сертификат на котлы отопительные паровые КП

Опросные листы

Все опросные листы
Опросный лист на паровой котел
Заполнить опрос

Собственное производство

Котельный завод производит
  • Паровые котлы от 300 кг до 2.5 тонны пара в час
  • Промышленные водогрейные котлы от 150 КВт до 4 МВт на всех видах топлива
  • Механические топки ТШПМ, шурующая планка и ТЛПХ, ленточное полотно прямого хода
  • Циклоны для очистки воздуха и дымовых газов для производств и промышленных отраслей
  • Транспортеры и системы топливоподачи и шлакоудаления
Подробнее о производстве
Собственное производство
Смотреть видео
с производства